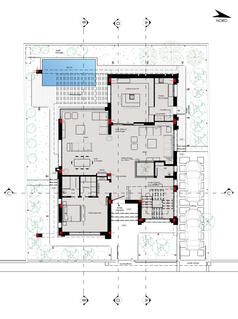
Villa Contemporaine à l’Architecture Lumineuse et Structurée


MAITRE D4OUVRAGE: Mr Majdi BArgaoui
LIEU :Ennahli, Tunis
SURFACE TERRAIN :500 m²
SURFACE COUVERTE :400 m²
PROGRAMME :Salon , Salle à manger , cuisine , 4xsuites, salon de nuit
MISSION :Architecture
DESCRIPTION PRPJET :

Villa Edena développe une architecture contemporaine précise et maîtrisée, où la ligne devient un élément structurant et la lumière un véritable matériau de conception.

Les volumes s’organisent autour d’une écriture claire, rythmée par des arches, des verticalités affirmées et des encadrements lumineux qui soulignent l’architecture et accompagnent les usages, de jour comme de nuit. L’intention est de créer une villa à la fois lisible, élégante et performante, où chaque espace s’ouvre naturellement vers l’extérieur, tout en conservant intimité et confort. La matérialité, sobre et contrastée, renforce cette recherche d’équilibre entre modernité et chaleur, pour offrir un cadre de vie contemporain, durable et parfaitement adapté aux exigences actuelles.